Hudson Fisheries Barge
The Hudson Fisheries Trust , Inc. is a non-profit organization based in Upper Nyack, NY dedicated to preserving the skills, history, lore, and methods of the Hudson River’s traditional commercial fishing families.
The Hudson River commercial fishery has been a mainstay of our cultural heritage, an unbroken chain of tradition that dates back to the native Indians of the region. The skills, customs and folk arts which commercial rivermen practice are not just links to our past but testimony to the persistence of a tradition that has been integral to the fabric of our region’s diversity. Now, they are almost lost — not because they are anachronistic but because of pollution.
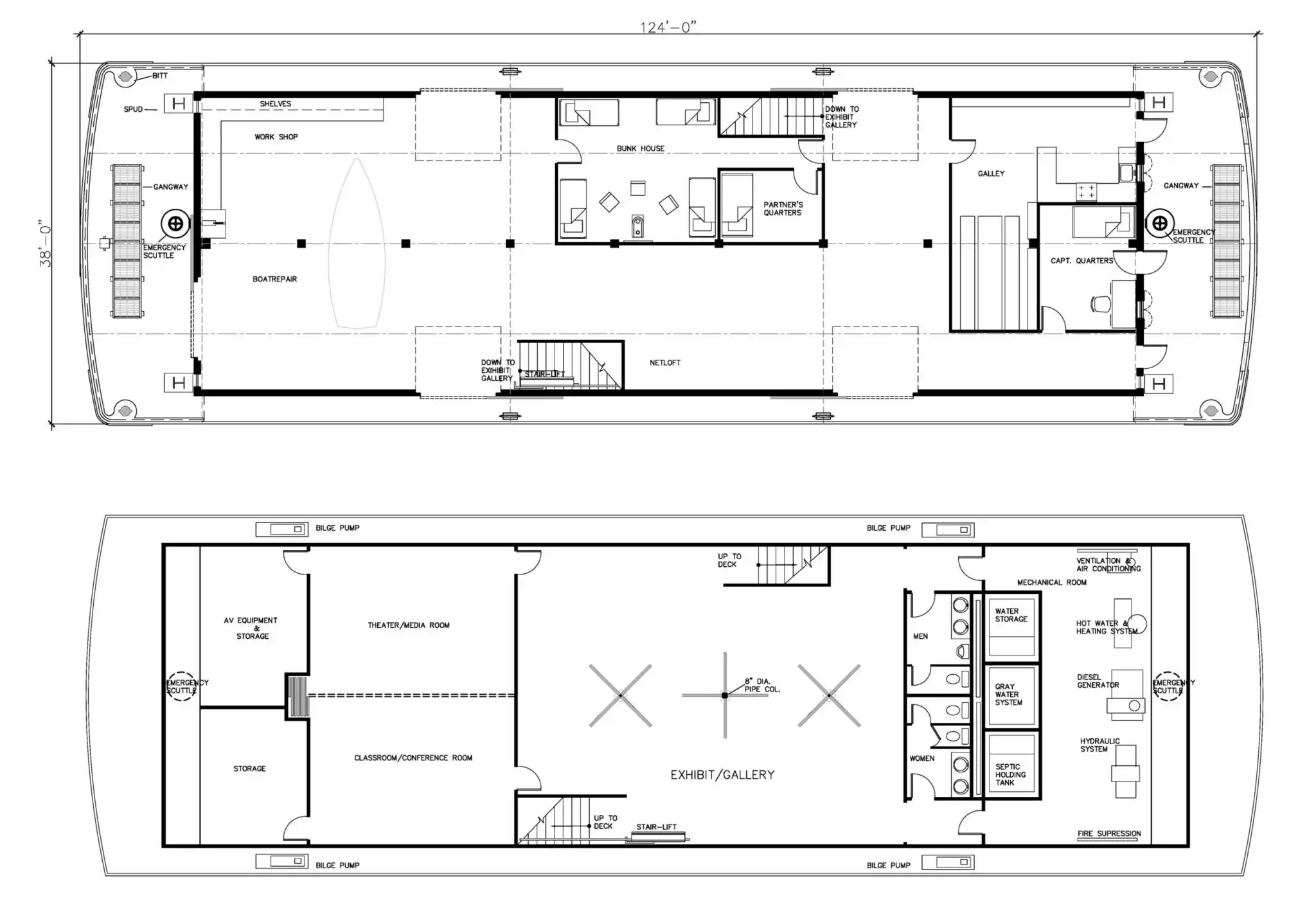
The centerpiece of the Trust will be the Hudson Fisheries Barge Museum, a replica of the turn-of-the-century railroad barges that were part of the New York Harbor “railroad navy” that transported goods in New York Bight and the lower Hudson. Fishermen converted the barges to fishing camps to house galley, bunkhouse, netloft, boat shop, and more during the long Spring hours of shad season.
Measuring 120 by 40 feet the barge museum will have two levels with a fishing camp occupying the upper level “house” and state-of-the-art gallery, media center, and interactive displays on the lower level. When not traveling, its home port will be Nyack, NY, an historic center of Hudson River commercial fishing.
The Hudson Fisheries Barge Museum will travel from town to town allowing any riverfront community to have its own Hudson River museum virtually overnight. Traveling with the barge will be a crew skilled in the netmaking, boatbuilding, fishing methods and lore of traditional Hudson River commercial fishing. When the museum lands at a town the entire waterfront will be converted into a Hudson River fishing village and education center.
